由于我公司產品型號眾多,可生產1-20蒸噸/小時的燃氣(油)鍋爐; 10-500萬大卡/小時的導熱油鍋爐; 1-20蒸噸/小時的生物質鍋爐;環保再生能源成套設備以及各種壓力容器等。產品詳情、報價資料歡迎撥打全國免費客服電話400-0373-598 或 15837372021或0373-5591968咨詢,獲取*新報價! 也可通過網站留言,我們會盡快與您聯系!
我司生產的生物質鍋爐,分為生物質蒸汽鍋爐、生物質熱水鍋爐、生物質導熱油爐等,規格齊全,均為現貨銷售,可當天發貨。廠家直銷,配置*全,價格*低,售后無憂!
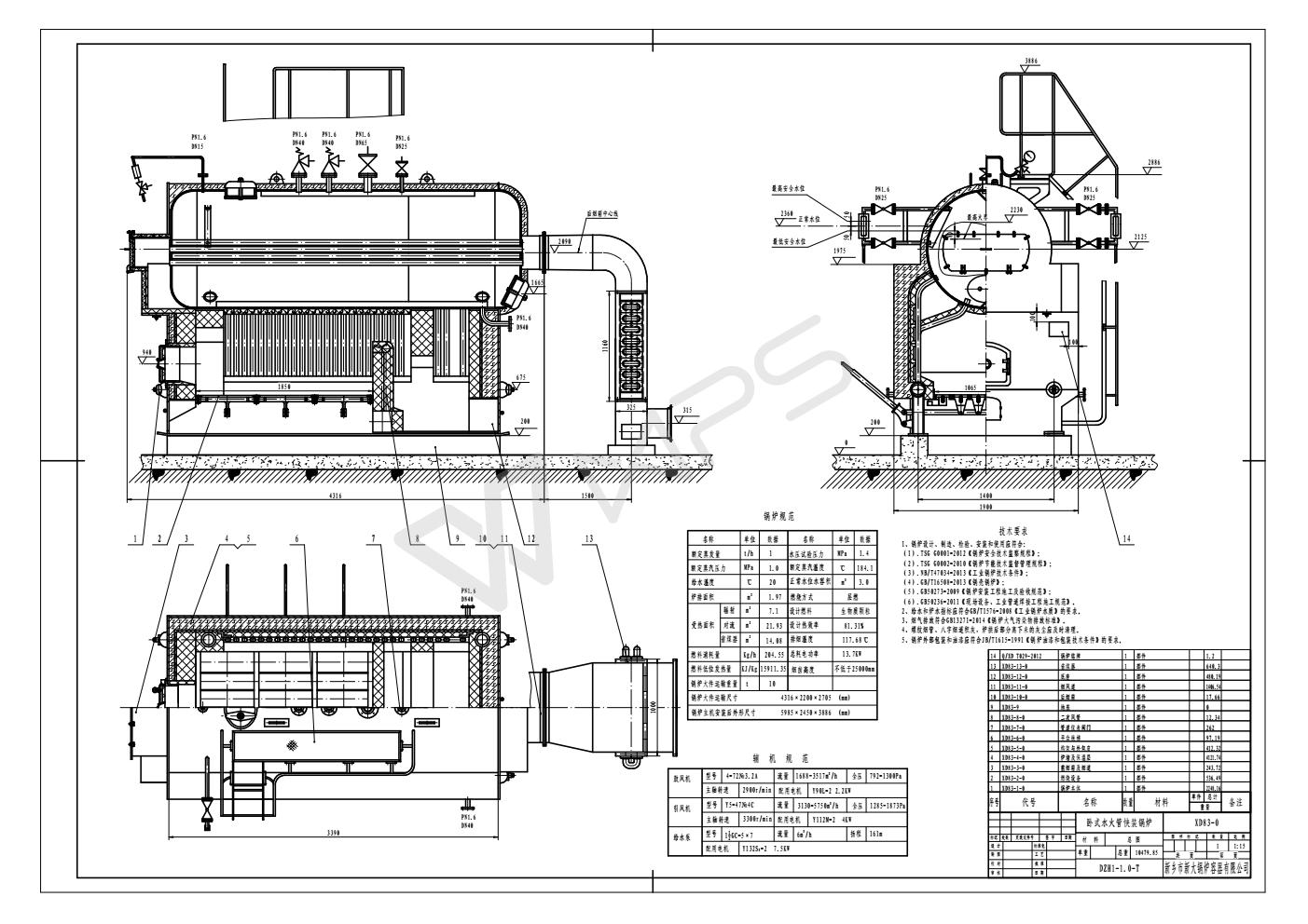
生物質鍋爐的工作原理:
水循環系統:經過軟化處理后的外部水源由給水設備通過調節閥進入鍋爐鍋筒,鍋筒鍋水由下降管進入左集箱和右集箱。
蒸汽系統:鍋爐燃燒室內水冷壁管(上升管)產生的蒸汽直接進入上鍋筒,通過汽水分離器由蒸汽接管進入分汽缸,再由分汽缸分流進入用戶各用熱系統。
燃燒系統:燃料在燃燒室內點火燃燒,產生的高溫煙氣由擋墻上部的出口通過鍋筒底部外側進入兩翼煙道,在鍋爐的前煙箱進入螺紋煙管,煙氣在螺紋煙管內經對流傳熱后,由煙氣出口經煙道、省煤器(外購選配件)至引風機,再由引風機送入標配濕式除塵器除塵,*后由煙囪排入大氣。
安全附件有安全閥、壓力表和水位表三種安全裝置。
電器控制系統:在鍋爐的前部可目視鍋爐處,裝設一部可控操作臺,操作臺內裝設有有一次鼓風機、二次鼓風機、引風機、鍋爐給水設備的電氣控制裝置。
1.爐膛空間較大,保證煙氣在爐膛內的停留時間,避免細小碳粒帶出爐膛
2.**的正壓吹風、負壓引風的動態旋風及渦流燃燒結構,組成合理的空氣動力場,使生物質燃料充分燃燒。
3.自動送料系統具有不回火、不易卡料、故障率低、進料均勻無死角
4.采用集成線路控制板,一鍵式操作自動點火、自動上料、自動恒溫,提高了鍋爐使用效率。





名 稱:新鄉市新大鍋爐容器有限公司
傳 真:0373-5591968
聯系人:王經理
手 機:15837372021 18738300055
郵 編:453731
商務QQ:3022209105
網 址:http://m.hnshxjl.com